NestApart review
- Beautifully decorated
- Tons of light
- Ridiculous views
- Business traveler ready
- Quiet central location
- Gorgeous Pacific Heights
- Walk anywhere
- Safe and secure building
Property description
San Francisco luxury living is at its finest in the Pacific Heights district. Every modern convenience is at your disposal, with gorgeous hardwood floors, beautiful wood cabinets, stainless appliances and black granite counters. Entertaining guests will be a true delight in this dream apartment rental. With apartments near to CPMC Medical Center and Lafayette park, the views in San Francisco are abundant, and these amazing apartments offer views of the nearby Golden Gate Bridge, the SanFrancisco downtown skyline, SF Bay and city panoramas, as well as Angel Island, Tiburon and Sausalito. Renting an apartment in this PacificHeights neighborhood brings all of San Francisco virtually to your doorstep. Every amenity of city life is just a short stroll away. Shop at Whole Foods Market. Spend the day in the restaurants, shops, theaters and night spots of Fillmore, Polk, and Union Streets. Rest and relax just a block away at San Francisco’s hilltop jewel, Lafayette Park.
Unit Features:
Modern Designer Furniture and Accessories
Hardwood Floors
Remodeled Kitchen and Bath(s)
Granite Kitchen Counters
Stainless Steel Appliances
Bay and City Views
Property Features:
Furnished and Accessorized Apartments
Professional Onsite Management
Short Term Leases Available
Controlled Access
Laundry Facilities
Parking Available
San Francisco's Pacific Heights Neighborhood
Access to Public Transportation
One Block From Lafayette Park
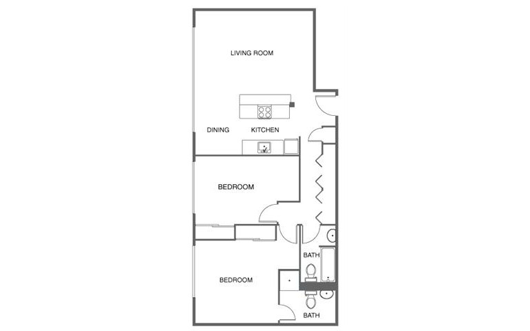
Floor plan
Nest Corporate collection
The Nest Corporate Collection offers a new instant bookable curated selection of corporate housing designed for productivity and comfort with a standard set of modern amenities.
Featured amenities
-
A Dreamy New Bed
-
Bathroom Basics
-
Concierge
-
Corporate Apartment
-
Fast Tested Wifi
-
Gym Access
-
Instant Book
-
Luxury Linen
-
Productive Work Area
-
Professionally Cleaned
-
Professionally Managed
-
Quiet Location Tested
-
Ready To Cook Kitchen
-
Safety Checked Building
Map
Details
| Type: | Home |
| Bedrooms: | 2 |
| Bathrooms: | 2 |
| Deposit: | - |
| Min stay: | 30 nights |
| Capacity: | 4 |
| Size (Sq Feet): | 950 |
| Internet Speed | 100 |
Prices
| Daily: | $250 |
| Weekly: | $2,000 |
| Monthly: | $5,900 |


