Property description
Avalon Ocean Avenue is a new San Francisco apartment community located at the south edge of Balboa Park. An ideal combination of convenience and style, our San Francisco apartments offer a choice of studios or one- and two-bedroom apartment floor plans in two brand new mid-rise buildings. With spacious floor plans and well-equipped kitchens, entertaining will be a breeze. Imagine living life luxuriously with amenities that include state-of-the-art fitness center, controlled-access, and underground parking. Come discover our amazing San Francisco apartments at Avalon Ocean Avenue.
Apartment Features
Thoughtfully designed studio, one- and two-bedroom floor plans
All apartments with in-unit washer/dryer
High-speed Internet available
Fully-equipped gourmet kitchens
Fully-equipped kitchens include dishwashers and garbage disposals
Microwave
Frost-free refrigerator with ice-maker
Electric oven
Modern features and finishes
Large walk-in closets
Water views from select apartments
Efficient, sustainably-designed homes in LEED Gold certified building
Community Amenities
Well-equipped fitness center
Courtyards with barbecue grills and WiFi access
Controlled access parking
Complimentary package acceptance service
Pet-friendly community
Smoke-free community
Commute easier with real-time transit information provided by TransitScreen®
On site retail including Whole Foods Market
Close to BART and downtown San Francisco
Easy commute to Silicon Valley
On-site ZipCar
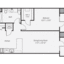
Floor plan
Map
Details
| Type: | Home |
| Bedrooms: | 1 |
| Bathrooms: | 1 |
| Deposit: | - |
| Min stay: | 30 nights |
| Capacity: | 2 |
| Size (Sq Feet): | 716 |
| Internet Speed | 55 |
Prices
| Daily: | $400 |
| Weekly: | $2,000 |
| Monthly: | $7,600 |

